
Contáctenos para más Información
Casa en planos en Venta, Santa Catarina Pinula.
Condominio Bellas Luces.
Amplia casa con diseño y acabados modernos de lujo.
5 dormitorios, 5.5 baños, sala principal, comedor, cocina con desayunador y family room, sala familiar, amplio jardín con pérgola, closet de blancos. Lavandería con alacena, bodega, patio de servicio, cuarto de servicio con baño. Amplio garage con 4 estacionamientos techados y baño para chofer o jardinero.
Área de construcción: 610 mts²
Área de terreno: 760 vrs²
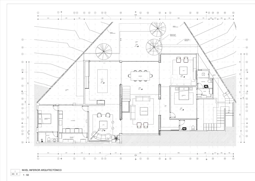
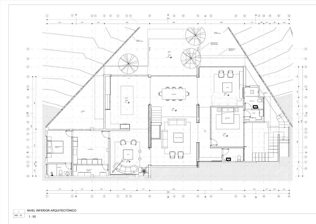
Ambientes
Primer nivel:
• Amplia sala principal de doble altura.
• Comedor con salida a pérgola.
• Moderna cocina con isla central y family room.
• Sala familiar (TV room) con salida a jardín.
• Baño de visitas.
• Habitación de visitas con walk-in closet, baño privado y jardín privado.
• Amplio jardín con pérgola.
• Amplia lavandería con alacena.
• Bodega.
• Patio de servicio.
• Cuarto de servicio con baño.
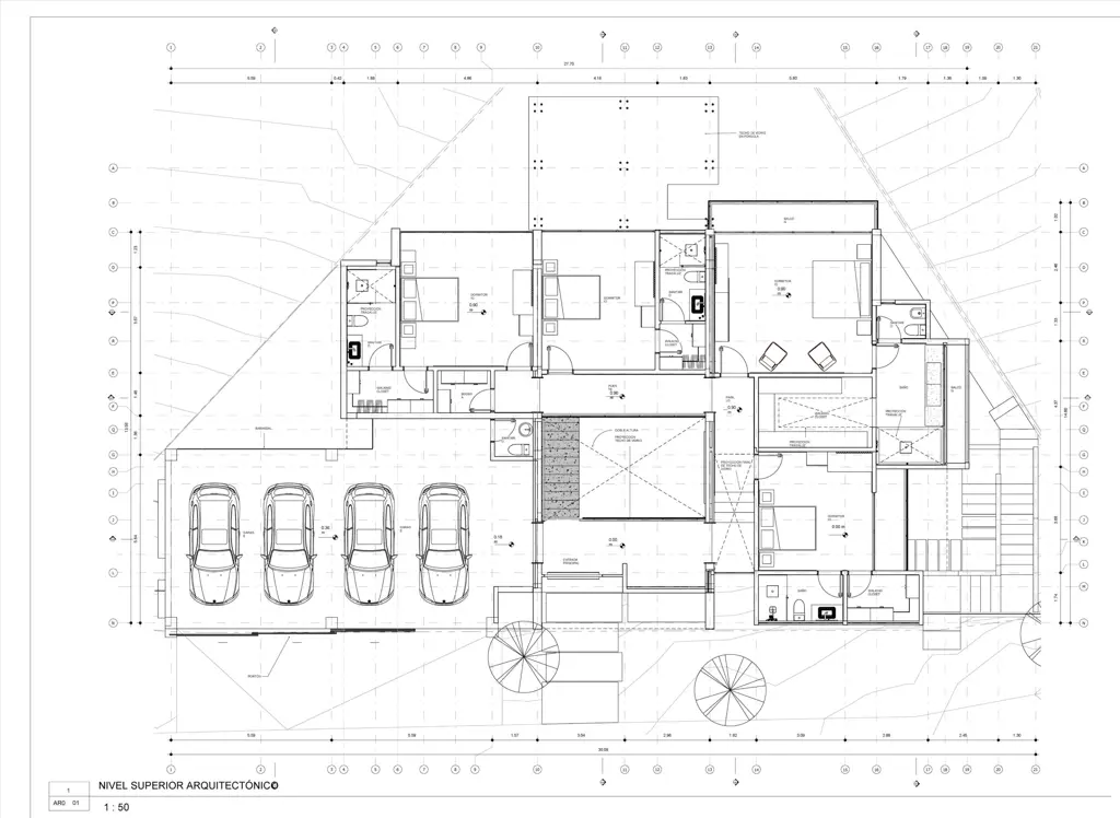
Segundo nivel:
• Vestíbulo de ingreso.
• Habitación principal con balcón, walk-in closet y baño privado.
• Habitación secundaria con balcón, walk-in closet y baño privado.
• Habitación secundaria con walk-in closet y baño privado.
• Habitación secundaria con walk-in closet y baño privado.
• Closet de blancos.
• Amplio garage con 4 estacionamientos techados y baño de chofer o jardinero.
Mantenimiento mensual del residencial: Q750
Enganche 30%
Entrega 24 meses después de firmar.
No hay propiedades sugeridas disponibles.